string(4) "3009"

Котел на дровах 0.3 МВт в Белгороде

Версия
для печати
В наличии на складе Цена в рублях с НДС 386 000
Получите скидку
у менеджера
Цена на котел на дровах 0.3 МВт с доставкой от 386 000 рублей с НДС
Вид топкиРучная, Колосники, ОУР
Максимальная тепловая мощность, МВт0.3
ТопливоТвердое, Дрова
Отапливаемая площадь, м²2300-3300
Доставка ТК в г. Белгород и по России
Безналичный расчет
Подобрать котел по мощности
Опросный лист
  • Технические
    характеристики
  • Описание
    товара
  • Комплект
    поставки
  • Дополнительно
    потребуется
  • Подключение и
    монтаж
  • Сертификаты и
    гарантии
  • Отзывы о
    продукции
  • Видео
    обзор
  • Подбор
    котла

Ручной водогрейный котел HEATEXPERT с колосниковой топкой для работы на дровах типа полено и среднекусковых древесных отходах

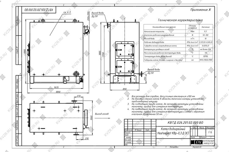
Технические характеристики котла на дровах 0.3 МВт

Тип Котел КВД
Тип отопительного котла Твердотопливный
Бренд HeatExpert
Марка Котел КВД 0.3
Вид топки Ручная, Колосники, ОУР
Максимальная тепловая мощность, МВт 0.3
Максимальная тепловая мощность, кВт 300
Максимальная тепловая мощность, Гкал 0.26
Диапазон регулирования мощности, % 50-100
Топливо Твердое, Дрова
Низшая теплота сгорания проектного топлива, кКал/кг 2440
Влажность топлива, % 40
КПД котла на ДРОВАХ, не менее, % 80
Расход ДРОВ среднечасовой за отопительный сезон, кг/ч 74.9
Расход ДРОВ среднечасовой за отопительный сезон, м³/ч 0.16
Расход ДРОВ при максимальной нагрузке котла, кг/ч 131
Расход ДРОВ при максимальной нагрузке котла, м³/ч 0.27
Расход условного топлива, кг/ч 46
Минимальная температура воды на входе в котел, °C 55
Максимальная температура воды на выходе из котла, °C 115
Давление воды, не более, МПа (кгс/см²) 0.3-0.6 (3-6)
Номинальный расход теплоносителя, м³/ч 10
Расход теплоносителя через котел min-max, м³/ч 8-13
Гидравлическое сопротивление при номинальном расходе, МПа (кгс/cм²) не более 0.07 (0.7)
Аэродинамическое сопротивление, Па (мм. вод. ст.) 51 (5.1)
Разряжение в топочной камере, Па (мм. вод. ст.) 20-40 (2-4)
Объем уходящих газов, м³/ч 1440
Тяга Уравновешенная
Водяной объем котла, л 250
Объем топочной камеры, м³ 0.94
Размер топочной камеры, длина*ширина*высота, мм 945х660х1500
Активная площадь решетки горения, м² 0.62
Присоединительные размеры по водяному тракту, Ду 50
Присоединительные размеры газохода уходящих газов, ширина*высота / сечение, мм/м² 390х200 / 0.08
Габаритные размеры котла, длина*ширина*высота, мм 1860х1300х2165
Масса, кг 1300
Вид Водогрейный
Конструкция котла водотрубная
Количество контуров Одноконтурный
Размещение Напольный
Тип камеры сгорания Открытый
Управление Электронное
Принцип работы твердотопливного котла Классический
Энергонезависимый Нет
Тип питания Трехфазное
Встроенный циркуляционный насос Нет
Встроенный расширительный бак Нет
Энергоэффективность Высокая
Отапливаемая площадь, м² от 2300 до 3300
Отапливаемый объем, м³ от 6900 до 10000

Водогрейный котел 0.3 МВт на дровах в Белгороде

Надежный и эффективный промышленный котел на дровах 0.3 мощностью 0,3 МВт, предназначен для стабильного отопления, горячего водоснабжения и вентиляции производственных, коммерческих и жилищно-коммунальных объектов площадью до 3300 м², температурой теплоносителя на выходе 95 - 115 °С, рабочим давлением 0,3 - 0,6 кгс/см (3,0 - 6,0) МПа.

Конструкция ручного промышленного котла HeatExpert на дровах мощностью 0.3 МВт обеспечивает эффективное сжигание древесного топлива типа в виде поленьев. Для этого предусмотрены:

  • объемная топочная камера, куда можно единовременно загрузить габаритное древесное топливо.
  • две загрузочные двери, или одна большая по вашим размерам.
  • многоходовая схема движения газов, обеспечивающая высокий КПД.
  • оптимальная гидравлическая схема движения воды, исключающая локальные перегревы.

Сфера применения котлов HeatExpert

Промышленный твердотопливный котел КВр-0.3-115 (95) Д применяется для автономного отопления, ГВС и вентиляции различных объектов:

  • цехов, складов, ангаров, производственных баз, гаражей, административных зданий, автосервисов, станций СТО, сушильных камер, мебельных производств, лесоперерабатывающих предприятий, домостроительных комбинатов.
  • теплиц, ферм, птицефабрик, зерносушильных комплексов.
  • больниц, школ, детских садов, санаториев, клубов, административных зданий, магазинов.
  • устанавливается в блочно-модульных и стационарных отопительных котельных для отопления жилых кварталов.

Устройство и принцип работы дровяного котла КВр-0,3 Д

Отопительный водогрейный котел КВр-0,3 Д на твердом топливе дровах — это стальной, стационарный, водотрубный, горизонтальный, напольный агрегат в легкой обмуровке изготавливается из круглой трубы сталь 20. Конструкция состоит из двух основных частей:

1. Топочной камеры: Объемная зона сжигания твердого топлива, усиленная охлаждаемой газоплотной конструкцией для повышения КПД и энергоэффективности.

2. Конвективной части: Двухходовой пучок труб, где дымовые газы, двигаясь по сложному тракту (вниз-вверх), максимально отдают тепло теплоносителю.

Для надежной и безопасной работы предусмотрено:

  • Штуцеры для выпуска воздуха в верхних коллекторах.
  • Дренажные штуцеры в нижних коллекторах для продувки и удаления шлама.
  • Удобные и прочные поворотные короба для направления газов и сбора шлака.
  • Люки для легкой очистки конвективных поверхностей.
  • Предохранительные клапаны.
  • Усиленные чугунные колосники с дополнительными ребрами жесткости и увеличенной толщиной, либо водяные колосники с системой водоохлаждения.

Регулировка мощности осуществляется просто: оператор изменяет интенсивность горения, управляя загрузкой топлива и регулируя подачу воздуха через шибер дутьевого вентилятора.

Преимущества котла 0,3 на дровах марки HeatExpert производства котельный завод «РЭП»

Промышленный дровяной котел HeatExpert КВр-0,3 Д с ручной загрузкой — это результат многолетнего опыта в проектировании надежного промышленного оборудования. Его конструкция продумана до мелочей для обеспечения высокого КПД, долговечности и простоты обслуживания.

1. Объемная топочная камера с газоплотностью

Топочная камера представляет собой систему газоплотных водотрубных экранов. Трубы, по которым течет вода, расположены близко друг к другу, промежутки между ними герметично заварены стальной полосой.

  • Преимущество: Это полностью исключает проникновение дымовых газов в котельный зал и подсосы холодного воздуха в топку, которые резко снижают КПД. Вы получаете безопасное помещение и экономите топливо за счет стабильного режима горения.
  • Надежность: Ширина и метод обварки полосы рассчитаны на стабильное охлаждение теплоносителем, что предотвращает ее прогары и деформацию при длительной интенсивной эксплуатации.

2. Развитая двухходовая конвективная система – основа эффективности

После камеры сгорания дымовые газы не сразу уходят в дымоход, а попадают в высокоэффективную конвективную часть, работающую по принципу экономайзера.

  • Шахматное расположение труб: Трубы в конвективных пакетах установлены в шахматном порядке. Это создает турбулентность потока газов и обеспечивает интенсивный теплосъем.
  • Принцип противотока: Гидравлическая схема котла организована так, что теплоноситель движется навстречу потоку дымовых газов (принцип противотока). Это обеспечивает максимальный перепад температур и глубокое охлаждение газов до 180-1000 °C, что напрямую экономит ваши деньги на топливе, сокращая тепловые потери.
  • Многоходовая циркуляция воды: Внутри котла HeatExpert вода движется по сложному маршруту, задаваемому перегородками в коллекторах. Это решает ключевые проблемы:
    • Исключаются застойные зоны и локальный перегрев труб, ведущий к прогару.
    • Высокая турбулизация потока и отсутствие ламинарного пограничного слоя предотвращает образование накипи на внутренних стенках труб.
    • Обеспечивается равномерный прогрев всей трубной системы, снимая термические напряжения и продлевается ресурс оборудования.

3. Колосниковая решетка для эффективного горения

При изготовлении водонагревательного котла 0.3 на дровах наш завод использует два вида колосников – чугунные и водонаполненные.

Чугунные колосники с щелевидными отверстиями собираются в решетку. Конструкция отверстий обеспечивает оптимальный подвод воздуха для горения и беспрепятственный провал шлака, предотвращая заклинивание. Мы устанавливаем в свои котлы, только надежные, тяжелые колосники с дополнительными ребрами жесткости, которые выдерживают не один отопительный сезон.

Водяные колосники собираются из труб, между которыми приварены металлические полосы с небольшими отверстиями. Размещение отверстий по всей поверхности колосника обеспечивает необходимое количество воздуха, а небольшой размер не дает провалиться в зольный короб недогоревшему топливу, тем самым гарантируя его полное догорание. Внутренне охлаждение труб производится за счет постоянного движения воды внутри труб. Это предотвращает перегрев и деформацию водяной решетки, обеспечивает длительный срок работы.

4. Продуманная теплоизоляция и обшивка

Промышленный котел 0.3 МВт под дрова имеет съемную облегченную обмуровку на основе плит базальтового волокна (ПТЭ), закрепленных на каркасе и защищенных обшивкой из стального листа.

Преимущество: Такая конструкция минимизирует тепловые потери в окружающую среду, повышая общий КПД котельной установки. Кроме того, она обеспечивает максимальную заводскую готовность – котел поставляется уже утепленным, что значительно ускоряет монтаж.

5. Удобство обслуживания для снижения эксплуатационных расходов

Конструкция предусматривает легкий доступ для чистки и осмотра:

  • Смотровые люки: Расположены в обшивке для быстрой очистки конвективных поверхностей от сажи, а также визуального контроля состояния труб.
  • Зольные бункеры: Два отдельных бункера (под топкой и под конвективной частью) с лазами для легкого удаления золы и шлака.

Надежная конструкция водогрейного котла 0,3 на дровах HeatExpert обеспечит срок эксплуатации котла, а ваш объект стабильным и экономичным теплом на протяжении 10 лет.

Принцип работы производственного отопительного котла 0.3 Д на дровах:

1. Загрузка: Для удобства загрузки котел производится с двумя дверками, установленными одна над другой или одной большой по вашим размерам. Дрова забрасываются на топочную решетку через верхнюю дверцу.

2. Горение: Воздух на горение твердого топлива подается принудительно дутьевым вентилятором. Интенсивность горения регулируется шибером на воздуховоде.

3. Теплообмен: Дымовые газы, отдав лучистое тепло в топке, последовательно проходят две конвективные ступени (двигаясь вниз, а затем вверх), где интенсивно охлаждаются до 200 °С, отдавая тепло воде в трубах.

4. Удаление продуктов сгорания: Отработанные газы выводятся через шибер на задней стенке котла в газоход. Зола и шлак выгребается через загрузочную дверцу и через лючок зольника.

Доставка котлов 0.3 на дровах осуществляется по всей России и СНГ

Мы осуществляем отгрузку котлов автотранспортом и железнодорожными перевозчиками в любую точку России и стран СНГ. Каждый котел КВр 0,3 Д на дровах надежно упаковывается и крепится для безопасной транспортировки.

Для расчета точной стоимости доставки до вашего города или населенного пункта отправьте нам онлайн-заявку. Наши логисты оперативно подготовят для вас варианты доставки с просчитанной стоимостью и сроками. Вы также можете уточнить любую информацию об условиях покупки котла онлайн, через форму обратной связи.

Как купить котел 0,3 МВт на дровах (300 кВт)

Чтобы купить промышленный водогрейный котел КВр-0.3 Д на дровах и получить комплексное решение для вашей котельной, свяжитесь с нами любым удобным способом:

Позвоните в отдел сбыта по телефону:

+8-800-700-17-43

+7 (3852) 29-97-41 (многоканальный)

Напишите в отдел сбыта на электронную почту:

SB@KVZR.RU

Отправьте онлайн-заявку на коммерческое предложение через сайт.

Наши специалисты помогут вам:

  • Подобрать необходимую комплектацию и вспомогательное оборудование (дымосос, насосы, щит управления, золоуловитель).
  • Рассчитать окончательную стоимость котла с учетом доставки до вашего региона.
  • Просчитать индивидуальные доработки под ваши технические условия.

Индивидуальные доработки и производство котлов 0,3 на дровах HeatExpert

Котельный завод «РЭП» изготавливает котлы 0.3 на дровах не только по типовым проектам, но и по техническому заданию заказчика.

Мы можем изготовить для вас:

  • Зеркальное исполнение (расположение штуцеров и патрубков с противоположной стороны).
  • Изготовление опускных газоходов.
  • Изготовление топочных дверок по требуемым вами размерам.
  • По спец заказу изготовление котла КВр-0,3 Д на дровах из цельнотянутой бесшовной трубы ГОСТ 8732 (34).
  • И другие изменения под особенности вашей котельной.

Комплект поставки котла на дровах 0.3 МВт

Цена водогрейного котла на дровах 0.3 МВт в Белгороде включает в себя котельный блок в изоляции, колосники, вентили, затворы, манометры, термометры, вентилятор поддува и предохранительные клапаны. Ниже приведена подробная информация.

Дополнительное вспомогательное оборудование для работы котла на дровах 0.3 МВт

Для эффективной и надежной работы котла на дровах 0.3 МВт в вашей котельной вам потребуется дополнительное оборудование - автоматика ЩУК, дымосос, насос сетевой и подпиточный, золоуловитель (по желанию), газоходы и переходники для газового тракта, дымовая труба. Мы предлагаем рассмотреть типовые варианты комплектации.

В случае если у вас на объекте уже имеется насосное и тягодутьевое оборудование, мы можем проверить совместимость котла на дровах 0.3 МВт нашего производства и вашего оборудования.

Можем изготовить нестандартные узлы для выполнения быстрого монтажа котла - газоходы и узлы обвязки.

Типовую схему монтажа котла вы можете посмотреть во вкладке схемы подключения и монтаж.

Щит водогрейного котла обеспечивает:

  • ручной пуск котла;
  • ручное управление дутьевым вентилятором, дымососом и насосом;
  • автоматическое поддержание температуры путем управления вентилятором, подающим воздух для горения.

Щит водогрейного котла показывает:

  • температуру воды на выходе из котла;
  • температуру воды на входе в котел.

Щит водогрейного котла автоматическую остановку с индикацией причины аварии при:

  • понижении расхода теплоносителя через котел;
  • понижении и повышении давления на выходе из котла;
  • повышении температуры воды на выходе из котла;
  • понижении разряжения в топке котла.

Элементы для управления вентилятором устанавливаются в щите управления котлом.

Элементы управления дымососом и насосом устанавливаются в электросиловом щите котельной.

Цена 168 000 рублей с НДС

Автоматика водогрейного котла обеспечивает:

  • ручной пуск котла;
  • ручное управление дутьевым вентилятором, дымососом и насосом;
  • автоматическое поддержание температуры путем управления вентилятором, подающим воздух для горения.

Автоматика водогрейного котла показывает:

  • температуру воды на выходе из котла;
  • температуру воды на входе в котел;
  • температуру дымовых газов на выходе из котла.

Автоматика водогрейного котла осуществляет автоматическую остановку с индикацией причины аварии при:

  • понижении расхода теплоносителя через котел;
  • понижении и повышении давления на выходе из котла;
  • повышении температуры воды на выходе из котла;
  • понижении разряжения в топке котла;
  • повышении температуры дымовых газов на выходе из котла;
  • понижении температуры дымовых газов на выходе из котла (остывание топки/затухание горения);
  • аварийном останове вентилятора и (или) дымососа;
  • исчезновении напряжения в цепях защиты.

Элементы для управления вентилятора и дымососом устанавливаются в блоке управления котлом.

Элементы управления насосом устанавливаются в общекотельном щите.

Цена 195 000 рублей с НДС

Дымосос для удаления дымовых газов из котла.

Цена 55 900 рублей с НДС
  • Компактный золоуловитель для твердотопливных котлов
  • Может устанавливаться как сразу за котлом, так и на улице
  • Универсальная конструкция позволяет организовать выход справа или слева, в зависимости от компоновки газоходов
Цена 44 000 рублей с НДС

Дымосос для удаления дымовых газов из котла.

Цена 97 500 рублей с НДС

Производим газоходы по индивидуальному заказу согласно схеме компоновки котельной. Системы газоходов могут включать в себя:

  • шиберы;
  • газоходы различного сечения;
  • переходы;
  • тройники;
  • карманы всасывающие дымососов.

Используется в качестве подпиточного насоса в промышленных отопительных котельных

Цена 47 500 рублей с НДС

Используется в качестве подпиточного насоса в промышленных отопительных котельных

Цена 46 800 рублей с НДС

Используется в качестве сетевого насоса в промышленных отопительных котельных

Цена 141 300 рублей с НДС

Схемы подключения и монтаж котла на дровах 0.3 МВт

Водогрейный твердотопливный стальной отопительный котел на дровах 0.3 МВт, предназначен для получения горячей воды номинальной температурой на выходе из котла от 95 до 115 °С рабочим давлением до 0,6 (6,0) МПа (кгс/см), используемой в системах централизованного теплоснабжения на нужды отопления, горячего водоснабжения. Устанавливается в производственных, промышленных и отопительных котельных.

Схема подключения и монтажа водогрейного промышленного котла на дровах 0.3 МВт
Смотреть
Скачать

Схема подключения и монтажа котла на дровах 0.3 МВт

Монтаж водогрейного котла на дровах 0.3 МВт и вспомогательного оборудования в котельной должно производиться в соответствии с проектом и учетом требований СП 89.13330. 2016 «Котельные установки. Актуализированная редакция СНиП II-35-76» и «Правил устройства и безопасной эксплуатации паровых котлов с давлением пара не более 0,07 МПа (0,7 кгс/см2), водогрейных котлов и водоподогревателей с температурой нагрева воды не выше 388 К (115 С). Правильный монтаж котла – залог его надежной и долгой работы.

Чтобы правильно подключить котел на дровах 0.3 МВт в котельной необходимо оставить проемы для обслуживания оборудования во время эксплуатации. На представленной здесь схеме указаны их минимальные размеры. Кроме того, в данной примерной схеме монтажа водогрейных котлов и оборудования указан перечень минимально необходимого вспомогательного оборудования для правильной работы котла.

К вспомогательному оборудованию при подключении промышленного водогрейного котла на дровах относят - щит управления котлом, насос циркуляционный, насос подпиточной воды, бак запаса воды, расширительный мембранный бак, дымовую трубу, систему газоходов и дымосос, золоуловитель (по желанию).

В случае если подпиточная вода не соответствует по своим характеристикам требованиям к питательной воде, необходимо предусмотреть систему водоподготовки котловой воды.

Для котельных 1 категории, являющиеся единственным источником тепла системы теплоснабжения и обеспечивающие потребителей первой категории, не имеющих индивидуальных резервных источников тепла, необходимо предусмотреть полное резервирование оборудования – подключение 2 (двух) котлов, насосов, ТДМ. Пунктиром обозначено оборудование для резервирования.

Для котельных 2 категории, включающие в себя промышленные и производственные котельные резервирование нужно предусматривать по необходимости.

Аэродинамическая схема котла котла на дровах 0.3 МВт
Смотреть
Скачать

Аэродинамическая схема котла на дровах 0.3 МВт на дровах

Воздух в водогрейный котел на дровах 0.3 МВт подается вентилятором поддува через топочный короб под слой древесного топлива для обеспечения горения. На боковой панели топки котла имеется пробоотборочный штуцер для подключения манометра и тягонапорометра.
Автоматика котла по данным тягонапорометра производит контроль разряжения в топочной камере, блокируя работу вентилятора в случае снижения разряжения в топочной камере, и исключая выбивание дымовых газов из топки в котельный зал. Из топки дымовые газы поступают в первый конвективный пакет, разворачиваются в поворотном коробе и через второй конвективный пакет выходят в газоходы котельной.
Для ручной регулировки тяги и дутья и режимов горения древесного топлива в комплекте котла предусмотрены шиберы. Шибер на воздуховоде подачи в топочный короб регулирует количество воздуха подаваемого вентилятором. Шибер на выходе из котла позволяет произвести отключение котла от общей магистрали газоходов котельной, а также регулировку тяги создаваемой дымососом.

Схема котла на дровах 0.3 МВт без золоуловителя
Смотреть
Скачать

Схема подключения котла на дровах 0.3 МВт без золоуловителя

При работе котла на дровах 0.3 МВт на древесном топливе дополнительная очистка дымовых газов с помощью золоуловителей не нужна. Схема подключения при этом следующая - дымовые газы выходят из котла в газоходы котельной, затем в дымосос и далее снова по газоходам в дымовую трубу. В зависимости от компоновки котельной дымосос может устанавливаться как в котельной, так и на улице. Наш завод производит газоходы и переходники к ним. Получив схему вашей котельной мы можем изготовить для вас комплект газоходов, переходников нужных размеров и сечений. На месте такие детали собираются как конструктор. Обращаем ваше внимание, что газоходы требуют изоляции, для защиты персонала от ожогов, так как уходящие газы имеют высокую температуру, а на улице газоходы требуют изоляции для избежания образования конденсата.

Схема подключения котла с золоуловителем
Смотреть
Скачать

Схема подключения котла с золоуловителем

Золоуловитель для промышленного дровяного котла на дровах 0.3 МВт обычно требуется устанавливать в котельных расположенных в жилой зоне и по требованию надзорных органов. Они позволяют произвести дополнительную очистку дымовых газов перед их выбросом в атмосферу. Золоуловители нашего завода могут устанавливаться как сразу за котлом, так и снаружи котельной. Кроме очистки воздуха золоуловители увеличивают сопротивление в газовом тракте, поэтому при их установке требуется дымосос большей мощности.

Схема тепловая котла
Смотреть
Скачать

Тепловая схема подключения

Образец тепловой схемы подключения дровяного котла на дровах 0.3 МВт и вспомогательного оборудования в котельной приведен на данной схеме. При эксплуатации очень важно грамотно осуществить подключение оборудования, установить все контрольно измерительные приборы, для контроля параметров работы котельной и запорную арматуру для оперативного переключения потока теплоносителя при плановой или аварийной остановке оборудования. Данную схему можно использовать как пример для разработки под свой объект или заказать у нас разработку индивидуальной схемы для вашей котельной.

Установка контрольно-измерительных приборов
Смотреть
Скачать

Установка контрольно-измерительных и предохранительных приборов котла на дровах 0.3 МВт

При монтаже котла на дровах 0.3 МВт на участке водоподводящего трубопровода после задвижки, непосредственно перед входом во входной и на выходном трубопроводах устанавливаются по одному манометру и термометру. На входе или выходе из котла устанавливается устройство контроля расхода теплоносителя (реле протока). Кроме того, на выходном трубопроводе устанавливаются не менее двух предохранительных клапанов - один рабочий, второй резервный.
Все приборы, кроме реле протока входят в комплектацию котла. Реле протока входит в комплектацию щита управления данного котла, щит покупается отдельно.

Дополнительные услуги

Сертификат и качество котла на дровах 0.3 МВт Д HeatExpert

Водогрейные котлы производства Котельный завод "РЭП" соответствуют строгим стандартам качества и безопасности. Завод производит котлы КВр-0.3 Д в соответствии с требованиями ГОСТ 30735-3001 по Техническим Условиям завода.

Котлы имеют все необходимые сертификаты соответствия Техническим регламентам Таможенного союза:

  • ТР ТС 010/2011 «О безопасности машин и оборудования»
  • ТР ТС 032/2013 - «О безопасности оборудования, работающего под избыточным давлением».

Водогрейный котел на дровах 0.3 МВт имеет гарантийный срок 24 месяца и срок работы при соблюдении правил монтажа и эксплуатации оборудования 10 лет.

Расшифровка маркировки котла на дровах 0.3 МВт Д HeatExpert:

  • К – котел
  • В – водогрейный
  • р – слоевая топка (решетка)
  • 0,3 – теплопроизводительность 0,3 МВт (300 кВт)
  • Д - работа на дровах и древесном топливе
  • HeatExpert - зарегистрированный товарный знак Котельного завода "РЭП"

Дополнительные аббревиатуры в маркировке:

  • КВр-0.3 Д – котел с колосниковой решеткой
  • КВр-0.3 Д – котел, предназначенный для работы на дровах и древесном топливе.
  • КВр-0,3-95 Д – максимальная температура нагрева воды на выходе 95 °C.
  • КВр-0,3-115 Д – максимальная температура нагрева воды на выходе 115 °C.
  • КВр-300 кВт Д – производительность, указанная в киловаттах.
  • КСВр-0,3 Д – котел стальной водогрейный.
Сертификат на водогрейные котлы .jpg
Сертификат на водогрейные котлы
Знак товарный на водогрейные котлы HEATEXPERT .jpg
Товарный знак на водогрейные котлы HEATEXPERT

Отзывы о продукции

Отзыва о товаре пока нет, будьте первыми!

Водогрейный котел на дровах КВД 0.3 МВт используется для отопления производственных, административных и жилых зданий. Котельный завод производит и поставляет весь перечень сопутствующего котельного оборудования - насосы, газоходы, автоматику, дымососы, дымовые трубы, циклоны и прочее. Специалисты нашего завода бесплатно подберут сопутствующее оборудование, а в случае необходимости, выполнят проектирование, монтаж и пуско-наладку котельной установки.

Смотреть видеообзор на
Подберите необходимую мощность котла для вашего объекта
Тип здания
Регион
Населенный пункт
Вид топлива
Наружный объем здания (м3)
Отапливаемый подвал

Как подобрать мощность котла для вашего объекта

Подобрать мощность котла по площади важно учитывая не только площадь и объем здания, но и тип зданий и климатические данные региона.

На нашем сайте калькулятор расчета мощности котла учитывает тепло, требуемое на возмещение тепловых потерь через строительные конструкции и потери, вызываемые инфильтрацией (проникновением) наружного воздуха, через их неплотности и периодически открываемые двери.

Наружный строительный объем здания должен определяться умножением площади горизонтального сечения, взятого по внешнему обводу здания на уровне первого этажа на полную высоту здания, измеренную для панельных зданий: от уровня чистого пола (нулевой отметки) до верхней плоскости теплоизоляционного слоя чердачного покрытия, для остальных строений от уровня земли.

Расчетная температура воздуха в отапливаемых зданий принимается в зависимости от типа и назначения здания:

  • Гостиница, общежитие, административное здание, жилые дома + 20 °С;
  • Детские сады, ясли, поликлиники, амбулатории, диспансеры, больницы + 22 °С;
  • Высшие и средние специальные учебные заведения, общеобразовательные школы, школы интернаты, лаборатории, предприятия общественного питания, клубы, дома культуры + 16 °С;
  • Театры, магазины, пожарные депо + 15 °С;
  • Кинотеатры + 14 °С;
  • Гаражи + 10 °С;
  • Бани + 25 °С.

В случае если требуется отопление различных по типу зданий, теплопотребление каждого считается отдельно, полученные значения складываются и подобрать мощность котла нужно в соответствии с общей суммарной мощностью каждого отдельно стоящего задания.

Климатические условия вашего региона принимаются в соответствии с СП 131.13330 Строительная климатология. Данные по всем регионам России занесены в наш калькулятор расчета мощности котла.

Подобрать мощность котла по площади с учетом потребностей объекта в тепле на вентиляцию и горячую воду возможно только с более детальным расчетом. Его вы можете заказать в отделе сбыта котельного завода отправив заявку на электронный адрес sb@kvzr.ru или позвонив по телефонам (38-52) 29-97-41, 29-97-42.

Вопрос-ответ

  • Технические
    характеристики
  • Описание
    товара
  • Комплект
    поставки
  • Дополнительно
    потребуется
  • Подключение и
    монтаж
  • Сертификаты и
    гарантии
  • Отзывы о
    продукции
  • Видео
    обзор
  • Подбор
    котла
Документы завода
  • Сертификаты завода
  • Членство в СРО
  • Аттестованная технология сварки
  • Патенты на котельное оборудование
  • Товарные знаки
Смотреть все документы
Сертификат на водогрейные котлы на твердом и жидком топливе
Сертификат на водогрейные котлы на газе и жидком топливе
Сертификат на котлы отопительные паровые КП
Сертификат на топки
Сертификат на щиты управления
Сертификат на скиповые подъемники
Сертификат на золоуловители (циклоны)
Сертификат на конвейеры скребковые
Сертификат на дробилки
Сертификат на клапаны предохранительные
Сертификат на бункер-накопитель механизированный
Сертификат на автоматику газовых горелок
Сертификат о происхождении товара форма СТ-1
Членство в СРО
Членство в СРО
Аттестованная технология сварки
Свидетельство аттестованной технологии сварки
Патент на отопительный котел
Патент на водогрейный котел
Патент на топку водогрейного котла
Патент на водогрейный газовый котел
Патент на водогрейный котел
Патент на топочное устройство твердотопливного котла
Патент на водогрейный котел
HEATEXPERT товарный знак
KVZR товарный знак
STEAMEXPERT товарный знак
Другая похожая продукция
Котел уголь дрова
Вид топкиРучная, Колосники, ОУР
Максимальная тепловая мощность, МВт0.3
ТопливоУголь, Дрова, Твердое
Отапливаемая площадь, м²2300-3300
328 000 р. Цена с НДС
Котел 0.3 с ОУР
Вид топкиРучная, ОУР
Максимальная тепловая мощность, МВт0.3
ТопливоТвердое, Уголь
Отапливаемая площадь, м²2300-3300
360 000 р. Цена с НДС
Котел КВр 0.3 К HeatExpert
Вид топкиРучная, Колосники
Максимальная тепловая мощность, МВт0.3
ТопливоТвердое, Уголь
Отапливаемая площадь, м²2300-3300
367 000 р. Цена с НДС
Котел на древесных отходах
Вид топкиРучная, Подовая
Максимальная тепловая мощность, МВт0.3
ТопливоТвердое, Дрова, Древесные отходы естественной влажности
Отапливаемая площадь, м²2300-3300
512 000 р. Цена с НДС
Котел на опилках 300 кВт
Лизинг
Вид топкиВихревая, Автоматическая
Максимальная тепловая мощность, кВт300
ТопливоОпилки
Отапливаемая площадь, м²2300-3300
1 398 000 р. Цена с НДС
Котел 300 кВт без дымососа
Вид топкиКолосники
Максимальная тепловая мощность, кВт300
ТопливоУголь
Отапливаемая площадь, м²2300-3300
320 000 р. Цена с НДС
Пеллетный котел 300 кВт
Лизинг
Вид топкиРетортная, Автоматическая
Максимальная тепловая мощность, кВт300
ТопливоПеллеты
Отапливаемая площадь, м²2300-3300
990 000 р. Цена с НДС
Вы просматривали эти товары
Котел КВД-0.3 МВт на дровах
Вид топкиРучная, Колосники, ОУР
Максимальная тепловая мощность, МВт0.3
ТопливоТвердое, Дрова
Отапливаемая площадь, м²2300-3300
386 000 р. Цена с НДС
Котел 300 кВт угольный
Вид топкиРучная, Колосники
Максимальная тепловая мощность, кВт300
ТопливоТвердое, Уголь
Отапливаемая площадь, м²2300-3300
320 000 р. Цена с НДС
Автоматический котел 0.8 МВт на пеллетах
Лизинг
Вид топкиРетортная, Автоматическая
Максимальная тепловая мощность, кВт800
ТопливоПеллеты
Отапливаемая площадь, м²6200-8900
Цена по запросу
Котел 1000 кг 170 С
Лизинг
Производительность, кг/ч1000
ТопливоГаз
Температура пара, не более, °C170
Давление пара, не более, МПа0.9
1 395 000 р. Цена с НДС
background